

CULTURE CENTRE - 2025
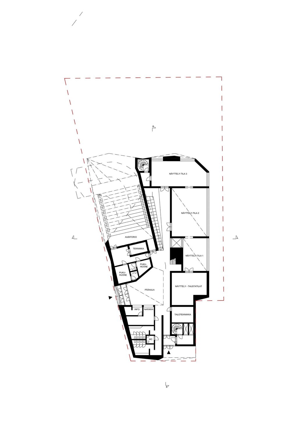
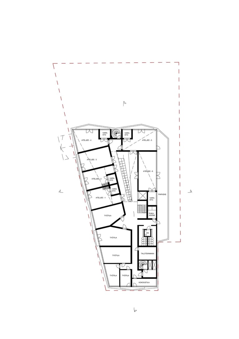
In Helsinki, Taka-Töölö, surrounded by hotels, an opera, and everyday services, lies Kulturknallen. A cultural center that includes exhibition spaces, an auditorium, a bar, as well as workspaces intended for the residents of the neighborhood and hotel guests.
The basic idea behind the building’s mass and placement was to make use of areas that take more than they give to the urban space of the block. The mass rises from an existing rocky outcrop and extends over the entrance ramp, where the auditorium’s seating tilts. Other spaces that generate a lot of traffic are placed at street level. The exhibition spaces open eastward with large, atmospheric, dimmed windows, and the building and its facilities are easily accessible and open to everyone from all sides sides of the site.
The structure of the building consists of a load-bearing concrete and metal frame, which is insulated and clad with stone slabs, highlighting the idea of a rocky outcrop. The exterior surface of the building is uneven and composed of triangles of various sizes, assembled together. The theme continues inside as well, with large and dramatic spaces and entrances reminiscent of cave openings.
Area: 2 970 m²
Public building studio














Starting point
Step 1
Step 2
Step 3
Step 4
Result








Basement :
1st floor :
3rd floor :
2nd floor :







