

Group project:
Kasper Fröjdö
Elise Enge
Yijia Zheng
Wood Architecture studio
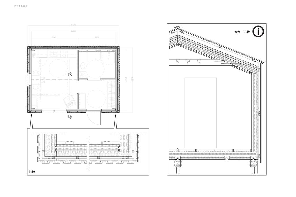
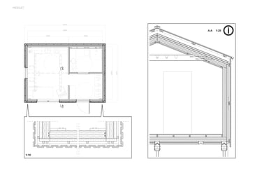
Backyard grandma is an affordable granny pod that can be customized within set parameters and adapted to any plot or backyard for lonely seniors in rural Finland, allowing them to stay where they feel at home and maintain their dignity for as long as possible.
BACKYARD GRANDMA - 2025





























































